Дачный дом 6х8 с мансардой
Классический дачный дом 6×8 с мансардой в котором можно свободно всей семьей жить весь сезон загородом. Актуально сделать две комнаты на мансарде. Проект дома 6 на 8 подходит молодым семьям с родителям, где каждый сможет комфортно отдыхать круглый год и заниматься садом в сезонное время. Доступная стоимость и короткие сроки сборки в любое время года для всех наших заказчиков.
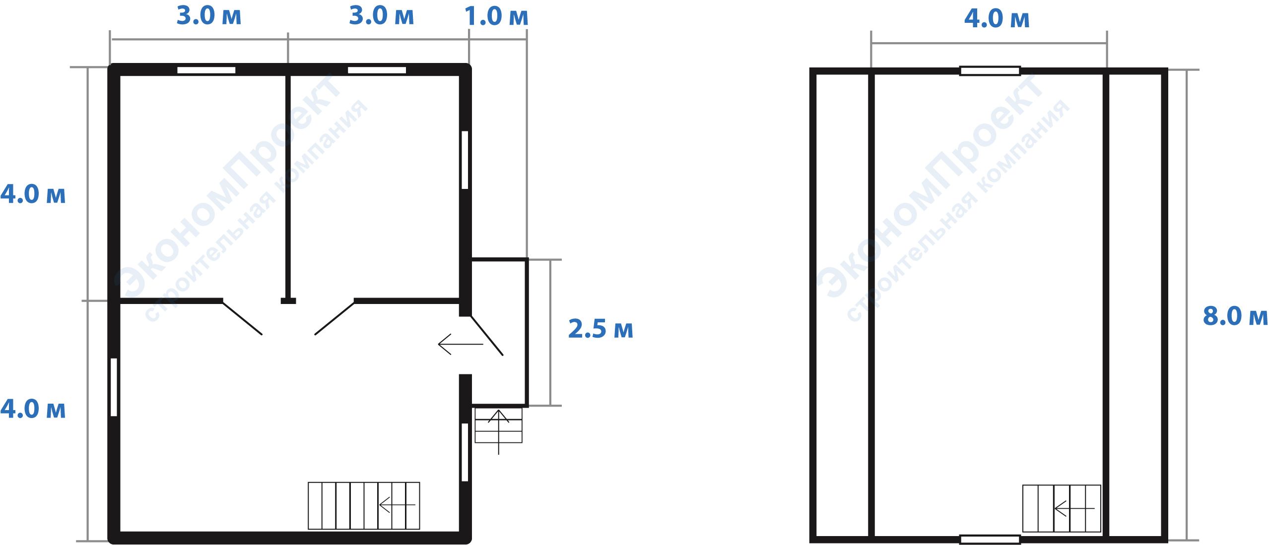
Вы можете внести изменения в комплектацию и планировку дома из бруса под ключ, а так же предложить свой проект.
Оставьте заявку онлайн или перезвоните по телефону:
Цена указана с учетом всех проводимых работ и полного комплекта материалов, с бесплатной доставкой 50 км. от КАД (въезд с Московского шоссе) и МКАД (въезд с Ленинградского шоссе) далее 120 руб./км.
Комплектация дома из бруса "под ключ":
| Фундамент: | фундаментные блоки (200х200х400) шаг 2-3 м | |
| Обвязка по периметру дома: | брус 100х150 мм / 150х150 мм | |
| Лаги пола: | брус 40х150 мм, шаг 0,6 м | |
| Стены: | профилированный брус 90×140 мм / 140×140 мм, с наружной стороны под блок-хаус или прямой | |
| Потолки, полы, перегородки | ||
| Высота первого этажа: | 2,35 м | |
| Выстота мансардного этажа: | 2,2 м | |
| Потолки: | обшиваются хвойной вагонкой | |
| Черновые полы: | обрезная доска 20х100 мм, парогидроизоляция Изоспан | |
| Чистовые полы: | сухая шпунтованная половая доска 28 мм | |
| Перегородки: | строганный профилированный брус 90х140 | |
| Утепление | ||
| Полы и потолки: | (Акция!) 100 мм "URSA" минеральный утеплитель | |
| Парогидроизоляция, ветрозащита: | "Изоспан" с двух сторон | |
| Межвенцовый утеплитель: | льноджутовое полотно | |
| Жилая мансарда | ||
| Каркасная: | обшивается хвойной вагонкой | |
| Утепление: | (Акция!) 100 мм "URSA" минеральный утеплитель, пароизоляция "Изоспан" | |
| Стропильная система | ||
| Стропила: | обрезная доска 40х100 мм | |
| Перекрытия: | брус 40х150 мм | |
| Обрешетка: | из обрезной доски 20х100 мм | |
| Крыша | ||
| Высота конька кровли: | от 1,5 м | |
| Фронтоны, свесы крыши, наружные углы: | обшиваются хвойной вагонкой | |
| Кровельное покрытие: | ондулин (красный, коричневый, зеленый) на выбор | |
| Комплектующие отделки дома | ||
| Окна: | (1000х1200) деревянные двустворчатые, двойные, с остеклением и наличниками | |
| Двери: | (Акция!) входная металлическая в подарок, филенчатые, петли "бабочки", наличники | |
| Стыки полов и потолков: | закрываются плинтусом | |
| Подступок (при входе в дом): | 2-3 ступени | |
| Лестница: | одномаршевая с перилами и балясинами | |
| Доставка: | 50км от КАД и МКАД (входит в стоимость) | |
| далее 120 руб/км |
Есть вопросы по проекту?
Оставьте контакты и мы свяжемся с Вами!
ВОЗМОЖНЫЕ ДОПОЛНЕНИЯ:
Генератор (при отсутсвии электричества)
Бытовка для проживания бригады
Свайно-винтовой фундамент
Профилированный брус камерной сушки
Сборка на деревянные нагеля
Дополнительные венцы
Фронтоны с имитацией бруса
Фронтоны из профилированного бруса
Рубка в «теплый угол»
Обработка антисептиком и декоративными красками
Замена ондулина на металлочерепицу
Замена деревянных окон на металлопластиковые
Установка водосточной системы
Отопление: металлические печи-камины (отопительные или декоративные) с установкой
